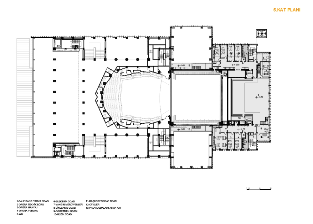
5. Kat Planı
14/47
Paylaş
Resmi Orjinal Boyutunda Göster
Atatürk Kültür Merkezi Yenileme Projesi
Project Location: İstanbul
Project Office: Tabanlıoğlu Mimarlık
Project Type: Cultural Center
Proje Tipi Grubu: Kültür
Peyzaj Mimarlığı: Arda İnceoğlu, Deniz Aslan
Lighting Project: Dinnebier Licht
Structural Project: Balkar Mühendislik
Mechanical Project: GN Mühendislik
Electrical Project: HB Teknik Elektrik Mühendislik
Acoustic Consultant: Sound Space Design Ltd.
Fire Safety Consultant: Abdurrahman Kılıç
Project Start Date: 2009