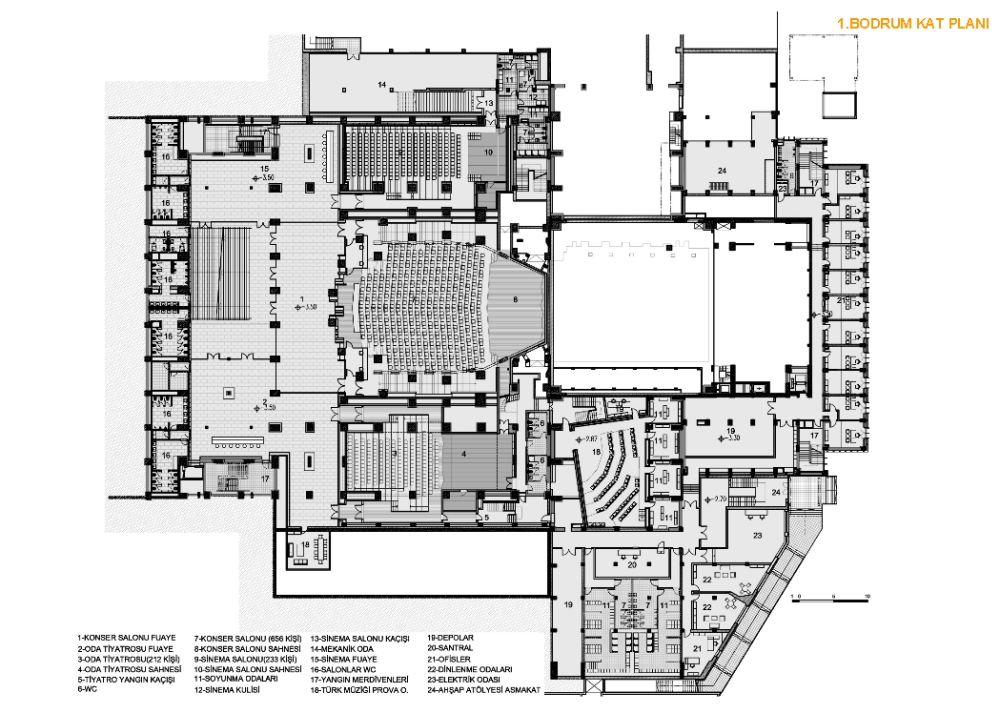
1. Bodrum Kat Planı
8/47
Paylaş
Resmi Orjinal Boyutunda Göster
Atatürk Kültür Merkezi Yenileme Projesi
Proje Yeri: İstanbul
Proje Ofisi: Tabanlıoğlu Mimarlık
Proje Tipi: Kültür Merkezi
Proje Tipi Grubu: Kültür
Peyzaj Mimarlığı: Arda İnceoğlu, Deniz Aslan
Aydınlatma Projesi: Dinnebier Licht
Statik Projesi: Balkar Mühendislik
Mekanik Projesi: GN Mühendislik
Elektrik Projesi: HB Teknik Elektrik Mühendislik
Akustik Danışmanı: Sound Space Design Ltd.
Yangın Güvenlik Danışmanı: Abdurrahman Kılıç
Proje Başlangıç Yılı: 2009