51/63
Paylaş
Resmi Orjinal Boyutunda Göster
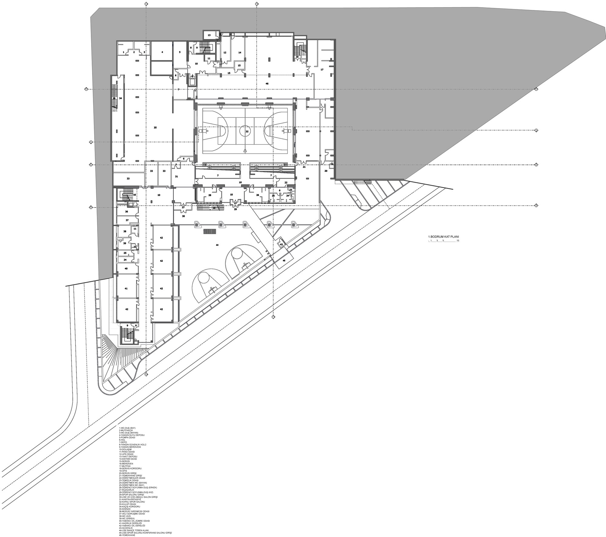
TED Rönesans Koleji
Proje Yeri: Maltepe, İstanbul
Proje Ofisi: Hatırlı Mimarlık
Proje Tipi: Anaokulu / Kreş, İlkokul
Proje Tipi Grubu: Eğitim
Tasarım Ekibi: Yeşim Hatırlı, Nami Hatırlı
İşveren: Bostancı Gayrimenkul
Yardımcı: Nazan Çapoğlu, Özge Bahar Albostan, Pınar Ünal, Gökhan Başpınar, Hazal Kaya, Tuğçe Şahin, Egemen Berker Kızılcan, Cansu Ergül, Muzaffer Tuğrul Aktepe
Ana Yüklenici: Bostancı Gayrimenkul
Peyzaj Mimarlığı: ON Tasarım
İç Mekan Projesi: Hatırlı Mimarlık
Proje Yöneticisi: Meltem İlunt
Aydınlatma Projesi: KGM Architectural Lightning
Statik Projesi: Aydın Pelin-Can Binzet Mühendislik
Mekanik Projesi: GMD Mühendislik
Elektrik Projesi: EMP Mühendislik
Tesisat Projesi: GMD Mühendislik
Akustik Danışmanı: Mezzo Stüdyo
Fotoğraf: Yeşim Hatırlı
Proje Başlangıç Yılı: 2011
Proje Bitiş Yılı: 2013
İnşaat Başlangıç Yılı: 2012
İnşaat Bitiş Yılı: 2014
Arsa Alanı: 11.600 m²
Toplam İnşaat Alanı: 20.900 m²