59/63
Paylaş
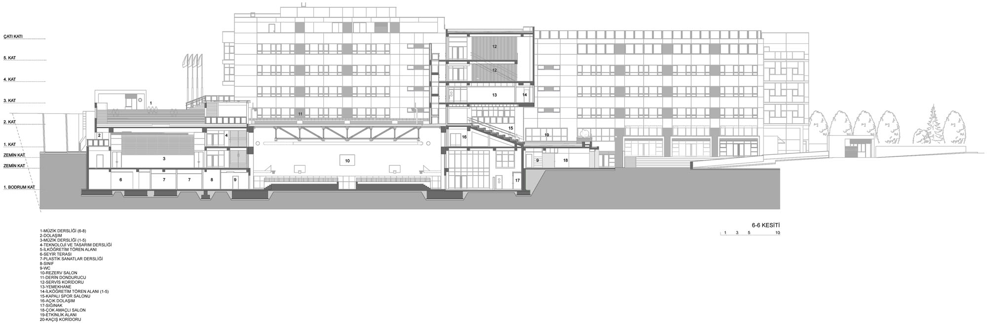
Resmi Orjinal Boyutunda Göster
TED Rönesans Koleji
Project Location: Maltepe, İstanbul
Project Office: Hatırlı Mimarlık
Project Type: Preschool / Nursery, İlkokul
Proje Tipi Grubu: Eğitim
Tasarım Ekibi: Yeşim Hatırlı, Nami Hatırlı
Employer: Bostancı Gayrimenkul
Yardımcı: Nazan Çapoğlu, Özge Bahar Albostan, Pınar Ünal, Gökhan Başpınar, Hazal Kaya, Tuğçe Şahin, Egemen Berker Kızılcan, Cansu Ergül, Muzaffer Tuğrul Aktepe
Ana Yüklenici: Bostancı Gayrimenkul
Peyzaj Mimarlığı: ON Tasarım
Interior Architecture: Hatırlı Mimarlık
Projcet Manager: Meltem İlunt
Lighting Project: KGM Architectural Lightning
Structural Project: Aydın Pelin-Can Binzet Mühendislik
Mechanical Project: GMD Mühendislik
Electrical Project: EMP Mühendislik
Plumbing Project: GMD Mühendislik
Acoustic Consultant: Mezzo Stüdyo
Photography: Yeşim Hatırlı
Project Start Date: 2011
Project End Date: 2013
Construction Start Date: 2012
Construction End Date: 2014
Building Plot Area: 11.600 m²
Total Construction Area: 20.900 m²