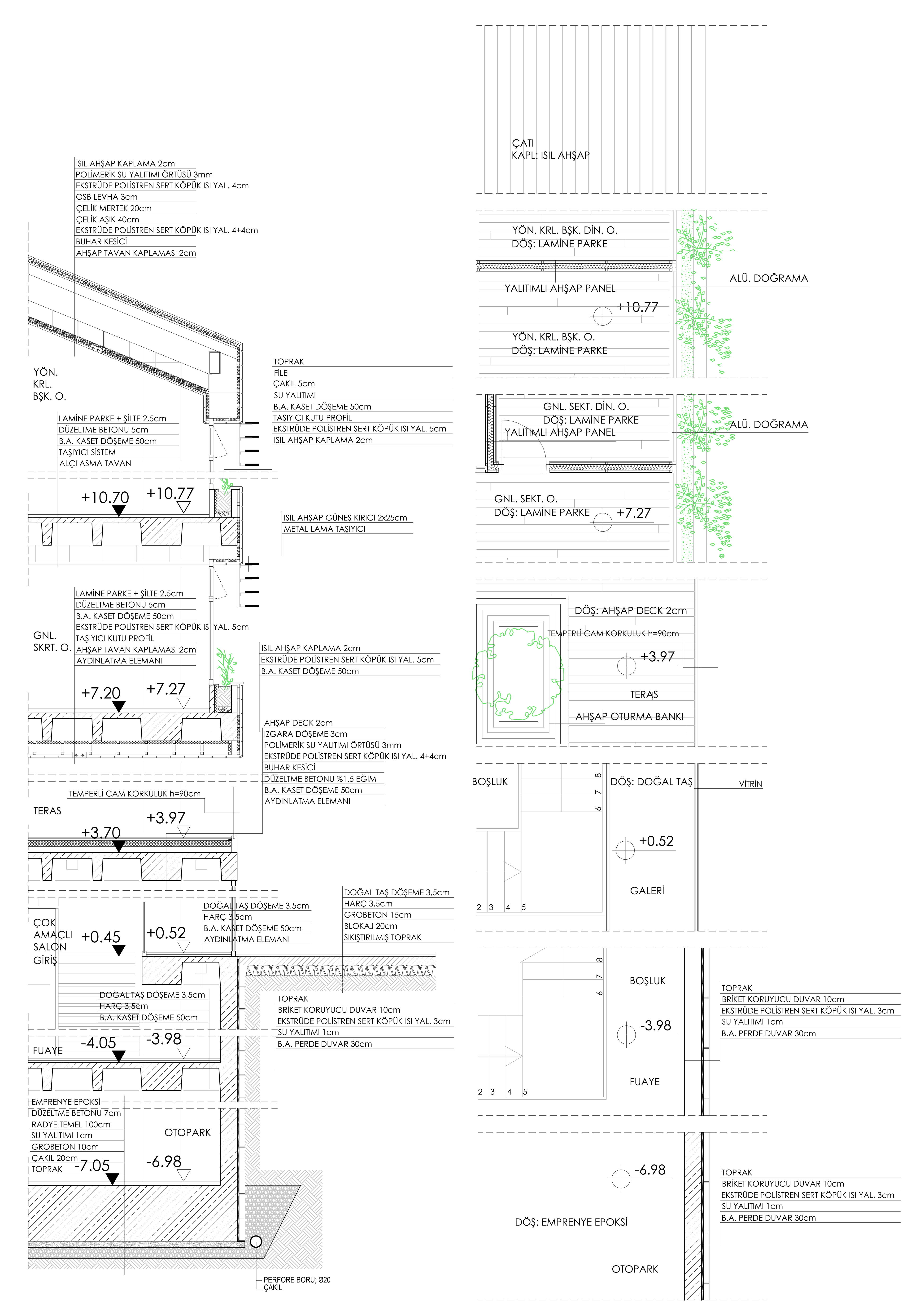
Şema
14/29
Paylaş
Resmi Orjinal Boyutunda Göster
Düzce Ticaret ve Sanayi Odası Hizmet Binası Ulusal Mimari Proje Yarışması
Project Location: Düzce
Project Office: Manço Mimarlık
Project Type: Other Public Buildings
Proje Tipi Grubu: Katılımcı
Tasarım Ekibi: Aytaç Manço, Ali Manço, Zühtü Usta
Employer: Düzce Ticaret ve Sanayi Odası
Yardımcı: Gufran Baykal
Structural Project: Yapı Akademisi
Project Start Date: 2010
Project End Date: 2010
Building Plot Area: 3.637 m²
Total Construction Area: 8.732 m²