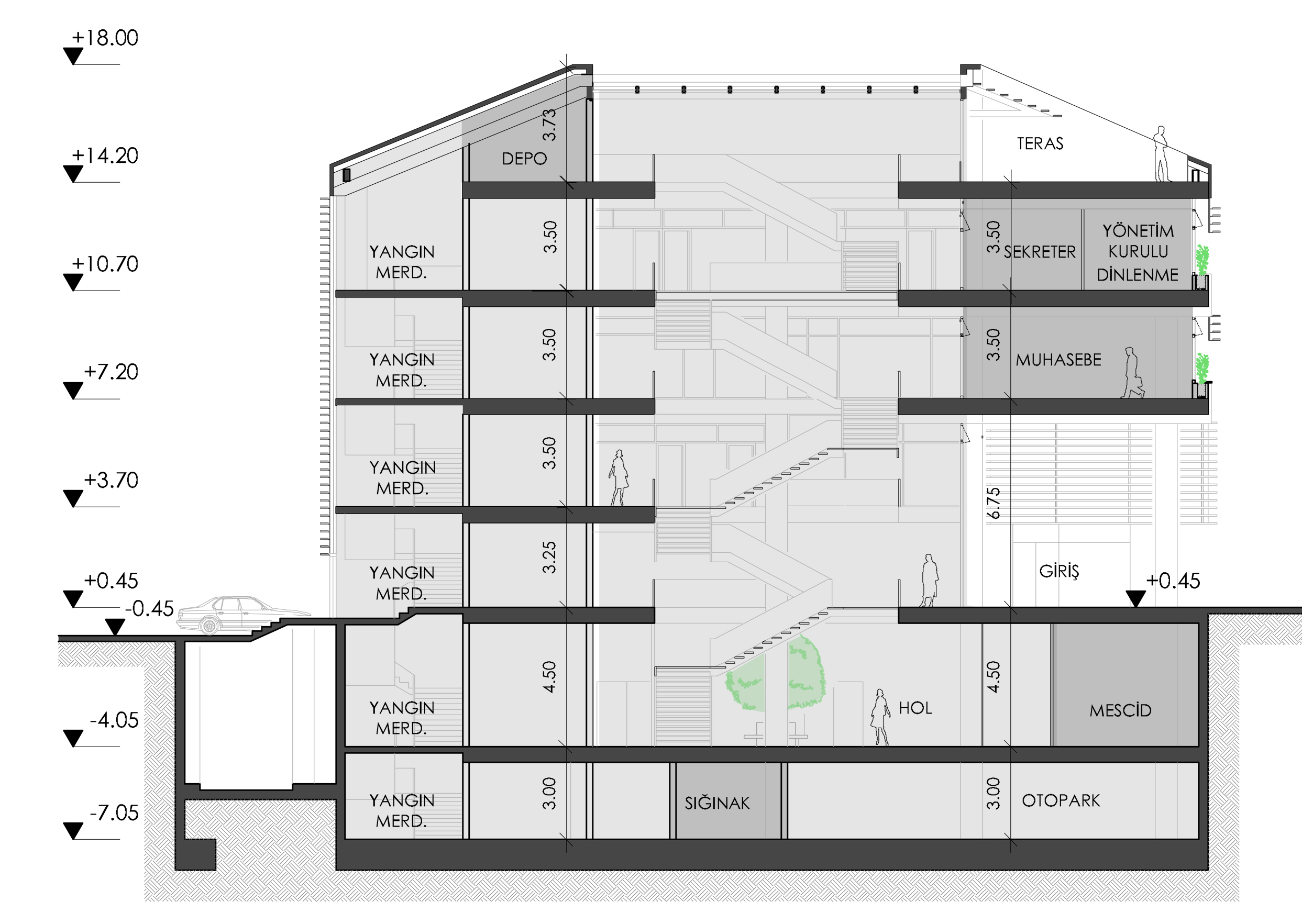
Kesit
19/29
Paylaş
Resmi Orjinal Boyutunda Göster
Düzce Ticaret ve Sanayi Odası Hizmet Binası Ulusal Mimari Proje Yarışması
Proje Yeri: Düzce
Proje Ofisi: Manço Mimarlık
Proje Tipi: Diğer Kamu Yapıları
Proje Tipi Grubu: Katılımcı
Tasarım Ekibi: Aytaç Manço, Ali Manço, Zühtü Usta
İşveren: Düzce Ticaret ve Sanayi Odası
Yardımcı: Gufran Baykal
Statik Projesi: Yapı Akademisi
Proje Başlangıç Yılı: 2010
Proje Bitiş Yılı: 2010
Arsa Alanı: 3.637 m²
Toplam İnşaat Alanı: 8.732 m²