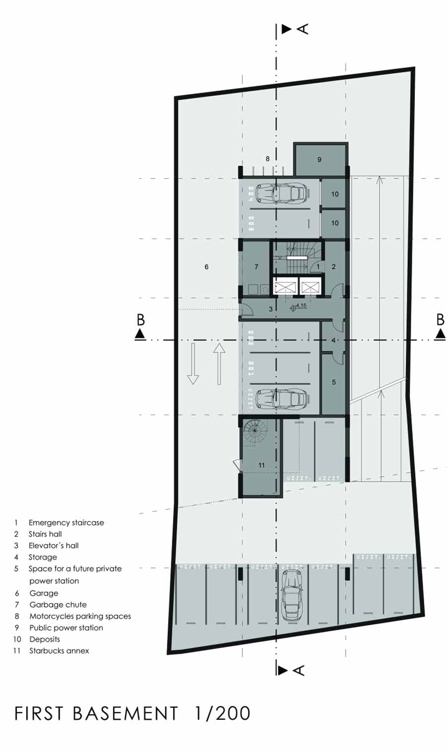
Kat Planı
13/18
Paylaş
Resmi Orjinal Boyutunda Göster
Loft Boutique Konut Kulesi Yarışma Projesi
Proje Yeri: Peru
Proje Ofisi: Manço Mimarlık
Proje Tipi: Apartman
Tasarım Ekibi: Aytaç Manço, Ali Manço, Zühtü Usta
Proje Başlangıç Yılı: 2010
Proje Bitiş Yılı: 2011
Arsa Alanı: 6.206 m²
Toplam İnşaat Alanı: 6.870 m²