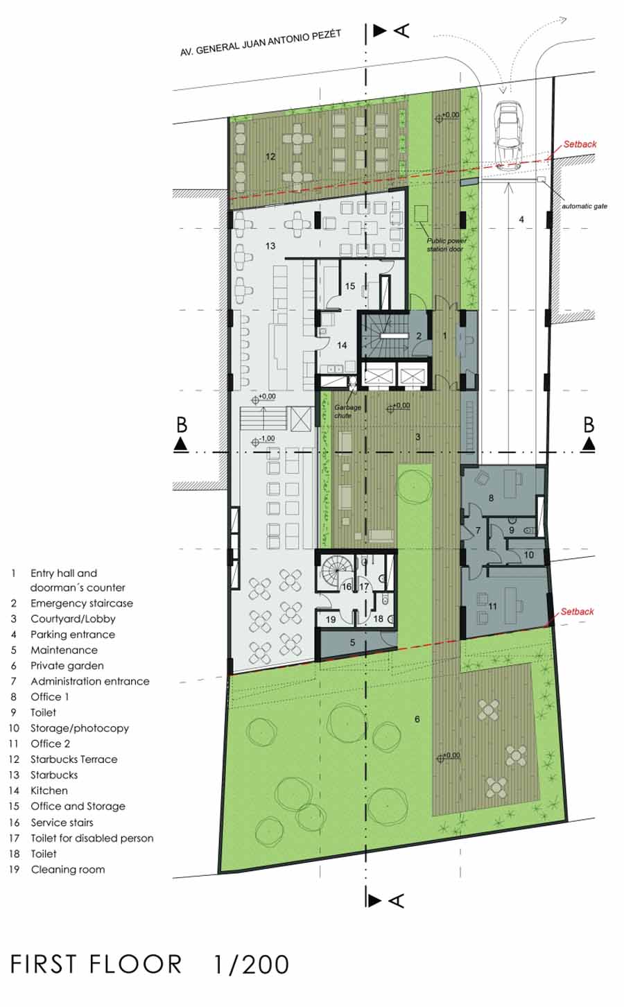
Kat Planı
14/18
Paylaş
Resmi Orjinal Boyutunda Göster
Loft Boutique Konut Kulesi Yarışma Projesi
Project Location: Peru
Project Office: Manço Mimarlık
Project Type: Apartment
Tasarım Ekibi: Aytaç Manço, Ali Manço, Zühtü Usta
Project Start Date: 2010
Project End Date: 2011
Building Plot Area: 6.206 m²
Total Construction Area: 6.870 m²