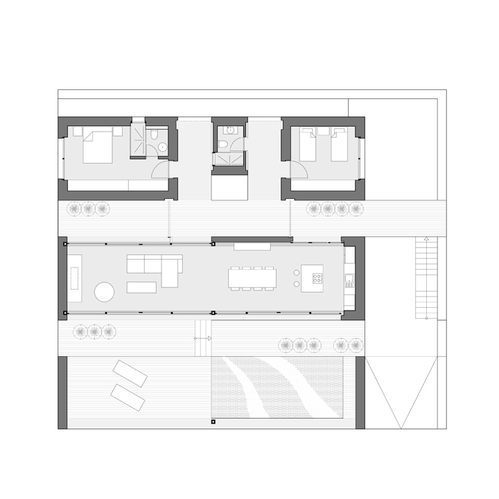
Zemin Kat Planı
20/34
Paylaş
Resmi Orjinal Boyutunda Göster
Gümüş-Su Villaları
Project Location: Muğla, Bodrum
Project Office: CAA Studio
Project Type: Housing Complex
Proje Tipi Grubu: Konut
Tasarım Ekibi: Alişan Çırakoğlu, Ilgın Avcı
Architectural Project Team: Deniz Yazıcı, Aslı İngenç, Diğdem Angın
Employer: Demirden | ilio
Structural Project: Murat Vardar
Project Start Date: 2012
Project End Date: 2012
Construction Start Date: 2013
Building Plot Area: 8000 m²
Total Construction Area: 1250 m²