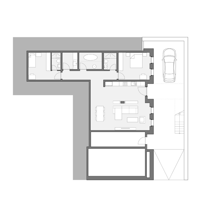
Bodrum Kat Planı
21/34
Paylaş
Resmi Orjinal Boyutunda Göster
Gümüş-Su Villaları
Proje Yeri: Muğla, Bodrum
Proje Ofisi: CAA Studio
Proje Tipi: Konut Sitesi / Grubu
Proje Tipi Grubu: Konut
Tasarım Ekibi: Alişan Çırakoğlu, Ilgın Avcı
Mimari Proje Ekibi: Deniz Yazıcı, Aslı İngenç, Diğdem Angın
İşveren: Demirden | ilio
Statik Projesi: Murat Vardar
Proje Başlangıç Yılı: 2012
Proje Bitiş Yılı: 2012
İnşaat Başlangıç Yılı: 2013
Arsa Alanı: 8000 m²
Toplam İnşaat Alanı: 1250 m²