21/26
Paylaş
Resmi Orjinal Boyutunda Göster
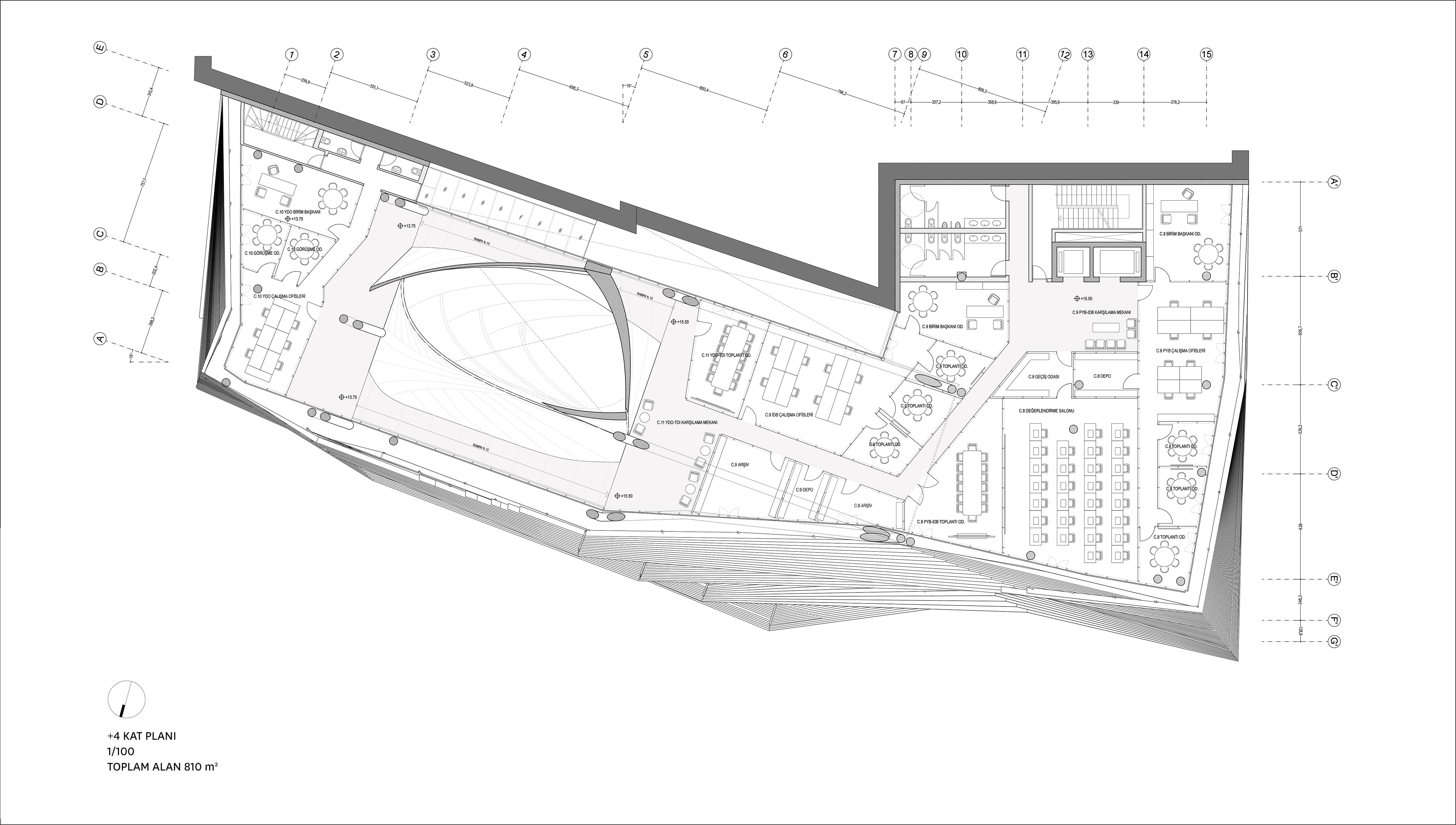
Katılımcı, İzmir Kalkınma Ajansı Hizmet Binası Yarışması
Proje Ofisi: KOTUstudio
Proje Tipi: Diğer Kamu Yapıları
Proje Tipi Grubu: Katılımcı
Tasarım Ekibi: Erdem Tüzün, Isaac Michan Daniel, Sina Özbudun, Yelta Köm
Danışman: Yasemin Tarhan, Ozan Tüzün, Volkan Doda, Doruk Kemal Kaplan, Selçuk Özdoğan
Yardımcı: Hakan Kaçmaz, Alfonso Patarrovo, Victor Lima, Ehecatl Cabrera