22/26
Paylaş
Resmi Orjinal Boyutunda Göster
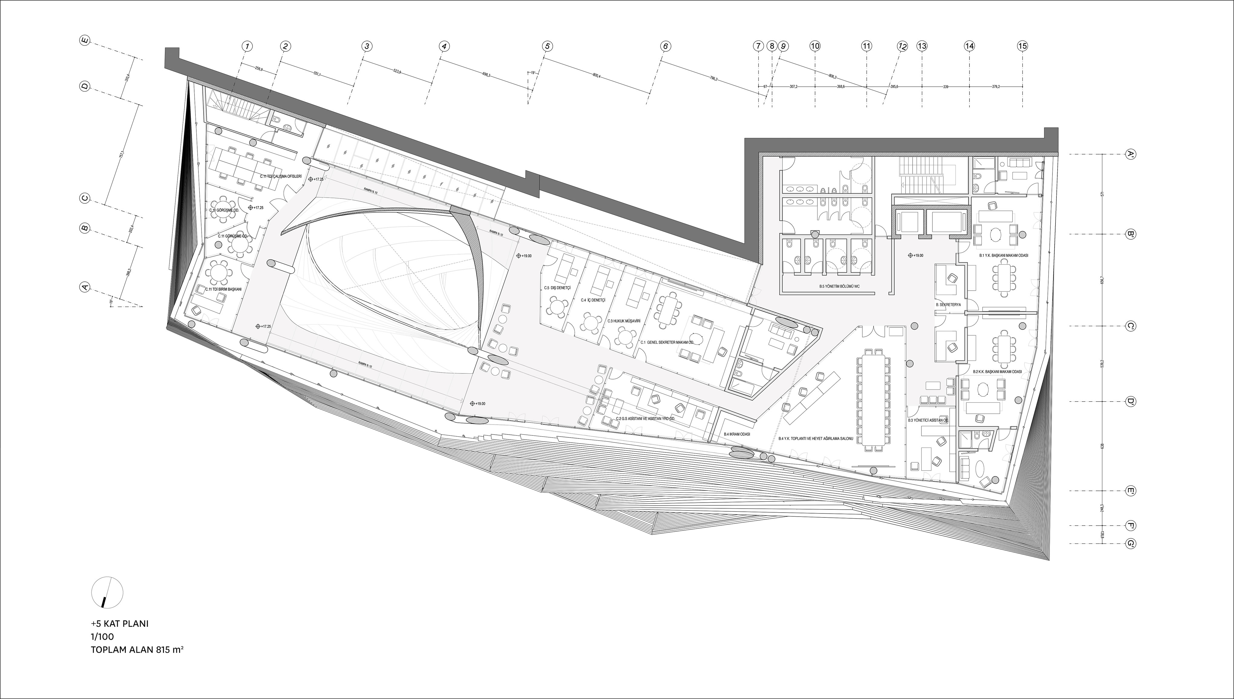
Katılımcı, İzmir Kalkınma Ajansı Hizmet Binası Yarışması
Project Office: KOTUstudio
Project Type: Other Public Buildings
Proje Tipi Grubu: Katılımcı
Tasarım Ekibi: Erdem Tüzün, Isaac Michan Daniel, Sina Özbudun, Yelta Köm
Consultant: Yasemin Tarhan, Ozan Tüzün, Volkan Doda, Doruk Kemal Kaplan, Selçuk Özdoğan
Yardımcı: Hakan Kaçmaz, Alfonso Patarrovo, Victor Lima, Ehecatl Cabrera