Üçgen CNC Fabrika ve Ofis Projesi
Fields tarafından tasarlanan "Üçgen CNC Fabrika ve Ofis Projesi", Kocaeli'nde yer alıyor.Bir organize sanayi bölgesinin (OSB) içerisinde yer alan proje alanının dik yamuk şekli ve araç girişinin tek cepheden olması vaziyet planı kararlarını ciddi anlamda sınırlandırmaktadır.
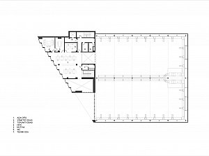
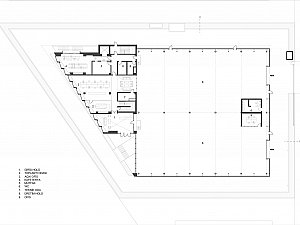
Dikdörtgen üretim holü OSB yolu cephesi tarafına konumlandırılmıştır. Parselin şeklinin dikte ettiği bu karar üretim holüne en kısa yoldan araç girişi sağlamak konusunda avantaj sağlamaktadır.
Çekme mesafeleri içerisinde üretim holünden geriye kalan alan idari birime ayrılmıştır. Üretim ve idari birimler iki farklı blok olarak ele alınmamış, yapı ikisinin geometrik olarak bütünleştiği tek bir kütle olarak düşünülmüştür.
Üçgen şeklindeki idari birimin dar köşesi yapının ana girişini ve odak noktasını tanımlamaktadır. Bu alanda üretim holünün cephesi tamamen camdır ve giriş saçağının altına kadar yükselmektedir. Bu sayede bina kullanıcıları ve diğer ziyaretçiler yapıyla karşılaştıkları ilk noktada üretim holünü görebilmektedirler. Kuzeye bakan bu cephe aynı zamanda üretim holünün gün boyu doğal ışık almasını ve çalışanların dışarıyı görebilmesini sağlamaktadır. İdari birimin testere cephesi ise akşamüstü batıdan gelen güneş ışığını keserken ofis alanlarının doğal ışıktan faydalanmasını sağlamaktadır.
Tek bir kütle içerisinde ele alınan üretim ve idari blokları yapısal sebeplerle dilatasyonla ayrılan iki farklı strüktür olarak tasarlanmıştır. Üretim holü tek katlı çelik bir yapı, idari blok çok katlı betonarme bir strüktür olarak tasarlanmıştır. İdari binanın bodrum katı teknik hacimleri, personel giyinme alanlarını ve depoları barındırırken üst katlar ofis alanı olarak düzenlenmiştir. Zemin katta giriş holü ve açık ofislerle ilişkili oturma alanları çift kat yüksekliğinde cam yüzeylerle üretime bakmaktadırlar. Bu görsel ilişkinin dışında idari blok üretime iki noktadan bağlanmaktadır.
Giriş holüne ek olarak ofis bloğunun diğer ucundaki bir koridorla üretim alanı yapının tüm kullanıcılarının bir araya geldiği kafeteryaya bağlanmaktadır.
Yapı, üretim alanınındaki proses boruları gibi farklı renklerle kodlandırılmıştır. Üretim holü gümüş gri sandwich panellerle, ofis bloğu beyaz aluminyum panellerle, yangın merdiveni ve idari binanın ana şaftını barındıran kütle ise sinyal sarısı aluminyum panellerle kaplıdır. Bu renklerin varyasyonları iç mekanlar ve mobilyalarda da kullanılmış, bu sayede tüm yapıda bütünleşik bir görünüm ve atmosfer sağlanması amaçlanmıştır.


Tweet