Other Works
Similiar Projects

Gebze Teknik Üniversitesi Havacılık ve Uzay Bilimleri Fakültesi

İbrahim Türkeri ve Gönül Karademir Mimarlık tarafından tasarlanan GTÜ Havacılık ve Uzay Bilimleri Fakültesi, bir eğitim yapısından farklı olarak kampüsü yeniden kurmayı hedefliyor.

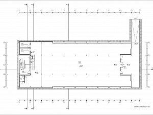
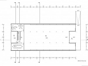
Gebze Teknik Üniversitesi Güney Kampüsünde yer alan Havacılık ve Uzay Bilimleri Fakültesi, proje alanı olarak planlanan alandaki tali yol üzerine konuşlanmıştır. Kampüs yaşantısının gerisinde ve aktif olarak kullanılmayan yol, strüktürel ve mekansal kurgu ile bütünleşmekte hacmin egemen sürekliliğini oluşturmaktadır. Böylece yapı kampüs kullanıcısı için farkedilebilir bir eğitim binası iken, yol da kampüs yaşantısına açık- yarı açık- kapalı mekan fikriyle yeniden eklemlenmektedir. Bununla birlikte GTÜ Teknopark ile GTÜ Güney Kampüsü birbirine bağlayan bu yol, içinden sokak geçen bir yapı kurgusu ile programlanmıştır.

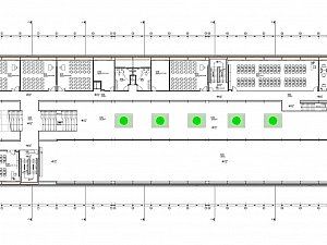
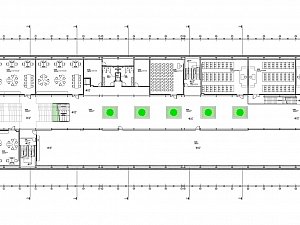
İhtiyaç programı gereği talep edilen laboratuvar ve derslikler ise yol sürekliliği ile uzanan "hangar içerisinde hangar" ile bütünleşerek yapı kullanıcısının - zemin sürekliliği ile tüm eğitim birimlerinden faydalanmasına olanak kılar. Yapı, gece – gündüz, yaz – kış gibi devinimin olduğu her zaman diliminde Havacılık Ve Uzay Bilimleri Fakültesi için gökyüzünün hareketlerini inceleyebilmek üzere, sokak - amfi - seyir platformu ile tüm bu birimleri bir arada tutar. Kampüs yaşantısında salt program dahili eğitim faaliyetlerinden faydalanmasının yanı sıra, açık ve yarı açık platformlarda da benzer etkinliklerde rol alması sağlanır. Bu bağlamda örgütlenen boşluk fikri ile yapı her düzlemde kampüs kullanıcısı için kullanılabilir duruma gelir.

Details
Project Location: Kocaeli (İzmit), Gebze
Project Type: Higher Education Building
Proje Tipi Grubu: Hakan Kısa, Eğitim Yapısı
Employer: Gebze Teknik Üniversitesi Rektörlüğü
Peyzaj Mimarlığı: İbrahim Türkeri, Gönül Karademir
Projcet Manager: İbrahim Türkeri
Concept Design: İbrahim Türkeri
Construction Drawings: İbrahim Türkeri, Gönül Karademir
Facade Design: İbrahim Türkeri, Gönül Karademir
Lighting Project: İbrahim Türkeri, Gönül Karademir
Grafik Tasarım: İbrahim Türkeri, Gökberk Özdemir
Structural Project: Ramazan Akkaya
Mechanical Project: Melek Akkaya
Electrical Project: Emrah Sarıalioğlu, Onur Çakır
Plumbing Project: Onur Çakır
Çelik Projesi: Ramazan Akkaya, Melek Akkaya
Photography: İbrahim Türkeri
Architectural Supervision: GTÜ Yapı İşleri ve Teknik Dairesi
Construction Start Date: 2021
Construction End Date: 2025
Building Plot Area: 15.000 m2

Pin It
Architects

İbrahim Türkeri

Gönül Karademir