Çarşı Melikgazi
Çarşı Melikgazi Projesi'nin tasarımı Plan3 Tasarım'a ait.Modern şehircilik anlayışına uygun olarak tasarlanan bu proje, ticari ve sosyal yaşamı bir araya getiren, çevre dostu ve sürdürülebilir bir çarşı konsepti sunmaktadır. Belediyemiz tarafından projenin planlanma sürecinde, Avrupa’daki benzer projeler detaylı bir şekilde incelenmiş ancak bu örnekleri takip etmekle kalmayıp, Çarşı Melikgazi mimari tasarımı, fonksiyonelliği ve kullanım kolaylığı açısından daha gelişmiş yenilikçi ve özgün bir yaklaşımla hayata geçirilmiştir. Böylece hem estetik hem de modern alışveriş anlayışına uygun, sürdürülebilir ve özgün bir ticaret merkezi oluşturulmuştur.
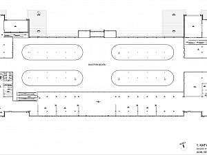
Çarşının mekânsal kurgusu, erişilebilirliği ve akıcı dolaşımı önceleyen net bir plan organizasyonuna dayanmaktadır. Doğal ışığın iç mekânlara derinlemesine taşınması, yön bulmayı kolaylaştıran görsel akslar ve gerektiğinde dönüşebilir modüler birimlerle esneklik sağlanır. Bu yaklaşım, farklı kullanıcı profillerine uyumlanabilen bir “yaşayan yapı” karakteri üretmektedir.
Toplam 5.900 m² kapalı alana sahip olan ve haftanın 7 günü hizmet verecek şekilde planlanan bu iki katlı çarşıda; meyve-sebze, et ve süt ürünleri, doğal ve organik gıda ürünlerinin satışının yapılacağı bir alan oluşturulmuştur. Çarşıda yalnızca gıda ürünlerinin satışı gerçekleştirilecek olup, vatandaşların sağlıklı, güvenilir ve hijyenik ürünlere ulaşabilmesi için tüm satış noktaları belediyemiz tarafından da denetlenecektir. Tüketicilerin her zaman taze ve kaliteli ürünlere erişimini sağlamak amacıyla günlük denetimler yapılacak, hijyen standartları en üst seviyede tutulacaktır.
Çarşı Melikgazi, sadece alışveriş alanı sunmakla kalmayıp, sosyal yaşamı destekleyen mekanları da bünyesinde barındırmaktadır. Pastane, çocuk oyun alanı, kafe gibi sosyal mekânların yanı sıra, Kayseri'nin yöresel mutfak kültürünü tanıtacak "Sofra Melikgazi" adlı bir restoran da çarşı bünyesinde yer alacaktır. Sofra Melikgazi, geleneksel Kayseri lezzetlerini modern ve nezih bir ortamda sunarak hem yerli halk hem de turistler için önemli bir cazibe merkezi olacaktır.
Çarşı Melikgazi, çevre dostu altyapısıyla da dikkat çeken bir projedir. İklim değişikliği ile mücadelede önemli bir rol üstlenen proje kapsamında, çatı üstüne kurulan güneş enerji santrali ile çarşının enerji ihtiyacının büyük bir bölümü yenilenebilir kaynaklardan karşılanmaktadır. Böylece enerji tasarrufu sağlanarak karbon ayak izi en aza indirilmekte, çevresel sürdürülebilirlik desteklenmektedir.
Çarşı Melikgazi’nin inşaatı tamamlanmış olup, şu anda firmaların yerleşim süreci başlamıştır. Projenin finansmanı tamamen Melikgazi Belediyesi bütçesinden karşılanmıştır. Çarşı Melikgazi, ticari ve sosyal hayatın gelişmesine önemli katkılar sağlayacak, bölgedeki vatandaşların ihtiyaçlarını modern ve nezih bir ortamda karşılamalarına olanak tanıyacaktır. Aynı zamanda şehrin ticaret hacmini artırarak, Kayseri’nin ekonomik ve sosyal yaşamına yeni bir dinamizm kazandıracaktır.
Bu proje, hem geleneksel çarşı kültürünü yaşatan hem de modern alışveriş anlayışını benimseyen yapısıyla Kayseri’de ticaretin ve sosyal yaşamın yeni merkezi olmaya adaydır

Tweet