Marif Hukuk Bürosu
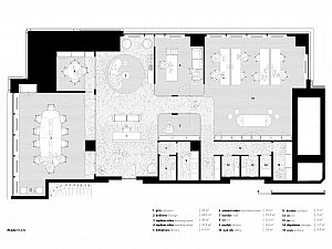
İstanbul merkezli uluslararası bir hukuk firmasının, Kempinski Astoria binasında bulunan ofis projesi için; mevcut halde konut planına sahip ofis alanının, ihtiyaçlar doğrultusunda yeni bir plan şeması oluşturulmuştur.Giriş hacminin maksimize edilmesi amacıyla, karşılama ve lounge alanı bir bütün olarak konumlandırılmış; İstanbul manzarası yönünde toplantı alanları, diğer cephelerde yönetici ve açık çalışma alanları ile çekirdek çevresinde ıslak hacimler, depolama ve açık kütüphane alanları tanımlanmıştır. Oluşturulan bu yeni plan şemasına uygun olarak mekanların hacim farklılıkları, ortak alanlarda halihazırdaki betonarme döşemelerin tavanda açığa çıkarılması ile sağlanmıştır.
Ortak alanlarda seçilen brüt beton zemin kaplamasının sürekliliği, hem sirkülasyon rotasının tanımlanmasını hem de tavan-döşeme uyumu ile bütünlük oluşturmasını hedeflemiştir.
Mekanlar arası ilişkilerin şeffaflığının sağlanması amacıyla kullanılan cam bölücü duvarlar, birimlerin ortak alana bakan cephelerinin yanısıra komşu birimlerle arasına da yerleştirilerek, şeffaflığın ve ışık geçiriminin arttırılması amaçlanmıştır. Böylece hem aydınlık bir ofis alanı sağlanmış hem de ofisin birçok noktası arasında kesintisiz göz teması imkanı yaratılmıştır.


Tweet