Basketbol Gelişim Merkezi
Basketbol Gelişim Merkezi (BGM), tarihi İstanbul Surları’nın Yedikule Sur önünde Marmara Denizi’ne kavuştuğu köşede, Balıklı Rum Hastanesi Kampüsü ve sur hattı arasında yer alıyor.Avlular, meydanlar ve organik bir ulaşım ağı etrafında örgütlenen Balıklı Rum Hastanesi’nin oluşturduğu doğu – batı gridine tutunan BGM, içinde bulunduğu güçlü bağlamdan referans alan bir basketbol yerleşkesi.
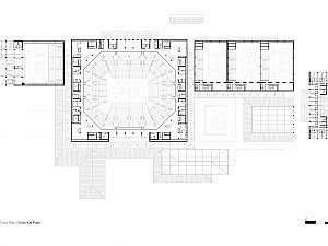
BGM’nin odağında ana salon bulunuyor. Bu odak etrafındaki mekanlar, üstlendikleri çeşitli işlevlerle kıvrılan bir iç sokak üzerine diziliyorlar. Sıkı plan örüntüsü, zamanla keşfedilen, kendisini yavaşça açan bir yerleşim doğuruyor. Yedi ayrı kütle, 4 ila 21 metre uzunluğundaki saçak yükseklikleriyle, yekpare sıva bir kabukla tarihi surların karşısında uzanıyor. Aralarına aldıkları sokaklar, meydanlar ve yeşil alanlar ile ileri geri oynayan kütleler ve bunların üzerlerini örten, alçaklı yüksekli çatılar uzun cadde silüetinin ağırlığını kırıyor. Öte yandan surların karşısında mütevazı şekilde yükselen çatılar dizisi teknik ekipmanlar için gerekli hacimleri sağlıyor. İç ve dış cepheler dengeli bir ifade kazanırken, korunaklı iç sokak ve ikinci bir zemin katmanı olan portiko üst kotu kademelenen kütleler arasında bir geçiş yaratıyor; hem biçimsel hem de işlevsel olarak. Cephe ve plandaki bu ifade, bugün spor yapısı denince akla ilk gelen; şehirlerin periferisinde, çevresi ile ilişkilenmesi zayıf, içe dönük, bulunduğu yere kendi kurallarını dikte eden mega-ikonik yapılarda görülen kurgunun aksine bağlam ve program etrafında gelişen anonim bir mimari yaklaşımın sonucu.
10.000 kişilik kapasitesiyle uluslararası turnuvalardan dünyaca ünlü organizasyonlara kadar geniş bir yelpazede pek çok etkinliğe ev sahipliği yapan çok işlevli ana salonun yanında, genç basketbolcuların yetişeceği, her biri 500 seyirci kapasiteli üç altyapı salonu bulunuyor. Bir başka binada, A Milli Takımlar, Türkiye Basketbol Federasyonu ile aynı çatı altında. Sportif, teknik ve idari personel hazırlık çalışmalarını burada gerçekleştiriyor. Sporcuların maç öncesi ve sonrası ihtiyaçlarına göre düzenlenen binada hem turnuva maçlarının hem de antrenmanların yapıldığı 1.000 seyirci kapasiteli bir saha daha mevcut. Kampüste yurt içinden ve yurt dışından profesyonellerin konaklayacağı; yıl boyu devam edecek seminerlerin, konferansların, toplantı ve atölye çalışmalarının yapılacağı bir kamp merkezi bulunuyor.
BGM yalnız bir spor yapısı değil, aynı zamanda bir basketbol köyü. Sonsuz sayıda senaryosu ve her yaşa uygun alternatifleri ile sporun gündelik hayatın içine sızdığı bir yerleşke. Yapının şehirle kurduğu bağı güçlendirecek şekilde sportif programlar, ticari ve kültürel programlar ile dengeleniyor. Bahsi geçen sportif alanlar, bir dizi sosyal ve kültürsel programla destekleniyor; basketbol müzesi, kütüphanesi, etkinlik avlusu, yeme içme alanı. Bu karma yapı kullanıcıların çeşitlenmesinin ve kullanım rutinlerinin sıklaşmasının önünü açıyor. Basketbolun, sahadan sokağa ve meydanlara doğru genişlediği bir program ve mekan kurgusu ile BGM, her yaştan ve çevreden kullanıcının spora dair farkındalığının ve katılımının artacağı yeni bir zemin sağlıyor.


Tweet